GRAN PASEO本郷三丁目 8階
こだわりで選びたい方におすすめ。文京区エリアで住まいをお探しなら「GRAN PASEO本郷三丁目」。雨の日で濡れた上着や傘もすぐに乾燥できる、浴室乾燥機を備え付けております。収納はシューズボックス・クロゼットなど豊富なので、広々と空間を利用することも可能です。当社には、こだわり条件や特集が満載です。文京区エリアや本郷三丁目付近できっと素敵なお部屋が見つかることでしょう。
- 賃料
- 21.3万円
- 間取り
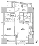
- 1LDK
- 専有面積
- 40.83㎡
- 所在階
- 8階
- 管理費・共益費
- 20,000円
- 敷金
- 0ヶ月
- 礼金
- 21.3万円
初期費用シミュレーションこの物件を借りた場合の初期費用の一例です。
- 賃料
- 管理費・共益費
- 敷金:
- 礼金
- 前家賃(日割り) ※1
-
- 前家賃(日割り)
- 仲介手数料 ※2
- その他費用 ※3
- 合計
※1. 1か月を30日として計算しています。
※2. 仲介手数料は仮の価格となりますので、実際の価格に関してはお気軽にお問い合わせ下さい。
※3. その他費用の項目は、保険料、退去時RC代、カギ費用になります。
担当者のコメント パレットさん

- 共用部には宅配ボックスを設置しているため、家で何時間も待機する必要がありません。浴室乾燥機付きの物件は、お風呂に干せば部屋干しをしなくて済むので広々と居住スペースが確保できます。セキュリティ面は、オートロック・TVインターホンなど充実しているので安心して生活できます。収納はシューズボックス・クロゼットなどが備え付けられているので、衣類や日用品の収納に重宝します。駐輪場付きの物件です。文京区エリアで新たな生活を始めたいとお考えの方。賃貸情報のことなら当社にお任せ下さい。地域に密着しておりますので、確かな地域情報と賃貸情報をご紹介いたします。お気軽にお問い合わせ下さい。
ポイント・特徴
物件概要
【マンション】 物件番号:100925710 情報更新日:2026年01月27日 次回更新予定日:2026年02月10日| 所在地 | 東京都文京区本郷3丁目 | ||
|---|---|---|---|
| 交通 | |||
| 間取り/詳細 |
1LDK 洋室 5.7帖/LDK 9.1帖 |
面積/バルコニー面積 | 40.83㎡/- |
| 賃料 | 21.3万円 | 管理費・共益費 | 20,000円 |
| 敷金/礼金/保証金 | 0ヶ月/21.3万円/- | 償却/敷引 | -/- |
| 更新料/更新事務手数料 | 21.3万円/0万円 | 敷金積み増し | - |
| 権利金/雑費 | -/- | 駐車場/月額料金 | -/- |
| 保険加入/料金 | 有/20,000円 | 保険名/保険期間 | -/2年 |
| 保証人代行義務 | 必加入 | 保証会社 | その他 |
| 保証会社詳細 | 株式会社エポスカード(東京) ROOM iD(個人)保証料:40% (法人)保証料:40%※保証人不 | 向き | 東 |
| 築年月(築年数) | 2021年 2月 (築5年) | 契約期間 | 2年 |
| 種別/構造 | マンション/鉄筋コンクリート | 部屋/所在階/階建 | 0801/ 8階/ 13階建 |
| 総戸数 | 35戸 | 現況/入居可能日 | 空家/2026年04月28日予定 |
| 特優賃 | - | 取引態様/賃貸区分 | 仲介/一般 |
| 物件番号 | 100925710 | 取引条件の有効期限 | 2026年02月10日 |
| 設備条件 |
|
||
| 備考 | 本郷三丁目駅周辺への引っ越しをお考えなら「GRAN PASEO本郷三丁目」。湿気を残さずしっかりと衣類を乾燥させられるので生乾き臭も軽減される、浴室乾燥機付きの物件です。この物件は駐輪場が付いている物件です。文京区に特化した当社は、確かな地域情報と豊富な賃貸情報を取り扱っています。知識をあまりお持ちでない方にも親切にサポート致しますので、ぜひお部屋探しは当社にお任せ下さい。 | ||
| 条件(その他) | 退去時RC代:5万5,000円 カギ費用:3万8,500円 二人入居可:可 | ||
| 取扱会社 |
|
||
※地図上に表示される物件の位置は付近住所に所在することを表すものであり、実際の物件所在地とは異なる場合がございます。








